Az értékesítő:
Giczi Andrea
+36 70 412 4351

Eladó családi ház Tahitótfalu, 159 000 000 Ft, 300 négyzetméter

159 000 000 Ft
családi ház, 300 négyzetméter
Egész szobák:
5
Ingatlan állapota:
Átlagos
Azonosító:
11579800
Értékesítés típusa:
eladó
Ingatlan típusa:
családi ház
Jelleg:
Családi ház
Település:
Tahitótfalu
Alapterület:
300
Telekterület:
850
Ár:
159 000 000 Ft
Fűtés jellege:
Cirkó
Terasz:
Nincs
Erkély:
Van
Melléképület:
Nincs
Pince:
Nincs
Parketta:
Nincs
Kábel TV:
Nincs
Telekterület típusa:
négyzetméter
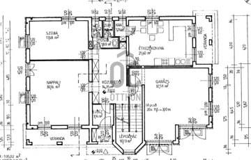
HATALMAS CSALÁDI HÁZ A DUNAKANYAR SZÍVÉBEN TAHITÓTFALUN! Minden igényt kielégítő családi házat kínálok Tahiban a hegyoldalon közel a 11-es úthoz. Megközelíthetősége kiváló, aszfaltozott úton lehetséges. Alkalmas lehet családi háznak, cégközpontnak, különféle vállalkozások megvalósítására. Az alagsori rész 140 nm nagyságú 3 fő részből tevődik össze, külön bejárattal, 2 méter magasságig burkolattal ellátott, sőt! ipari áram helységenként több ponton is rendelkezésre áll. Földszinten 33 nm nagyságú két állásos garázs, 30 nm nagyságú nappali, 18 nm nagyságú szoba, és 22 nm nagyságú konyha-étkező, illetve fürdőszoba áll rendelkezésre. Emeleti szinten 3 db óriási hálószoba, gardróbszoba, fürdőszoba és egy 17 nm nagyságú panoráma terasz várja új tulajdonosát. A ház 1994-ben épült, az akkor fellelhető legjobb minőségű építő anyagok, burkolatok, kerültek beépítésre. Igényes kivitelezésben épült, kiváló műszaki és statikai állapotban van. Amennyiben felkeltettem érdeklődését, hívjon még ma! Teljeskörű ügyintézéssel várom a hívását a hét minden napján.
https://ingatlanok.hu/elado/haz/tahitotfalu/159-millio-ft;300-negyzetmeter;5-szoba;cirko-futes/11579800